Не нашли что искали? Спросите у нас! Имеем архивы на 140 ТБ. У нас есть все современные проекты повторного применения и проекты ремонта советских типовых зданий. Пишите нам: info@proekt.sx
Вам не нужен весь проект? Сможем продать отдельную его часть (раздел или подраздел). Напишите нам! Для связи: info@proekt.sx
Типовой проект 252-1-45

Типовой проект 252-1-45 Главный корпус участковой больницы на 150 коек с поликлиникой на 200 посещений в смену, для строительства в 1В климатическом подрайоне, 2 и 3 климатических районах.
Общие сведения.
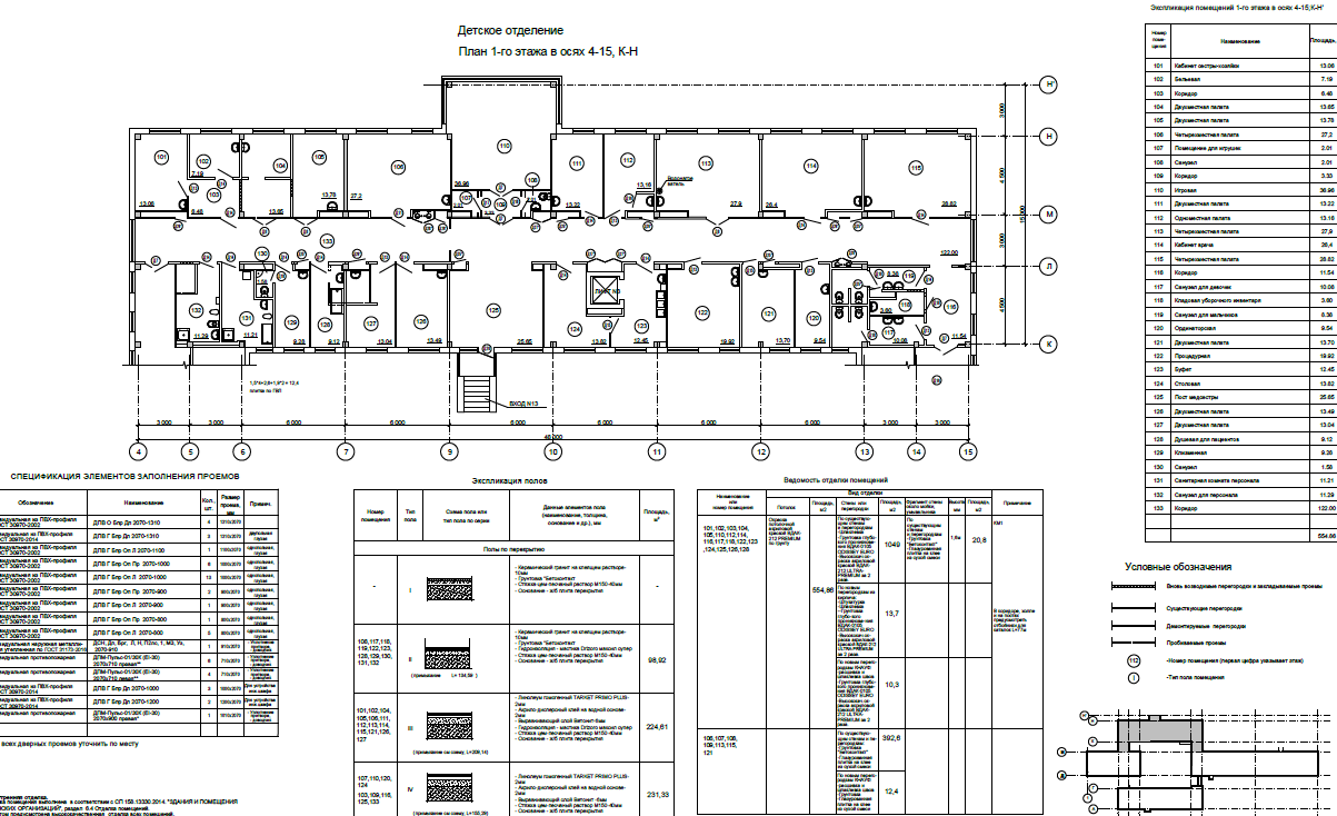
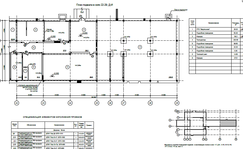
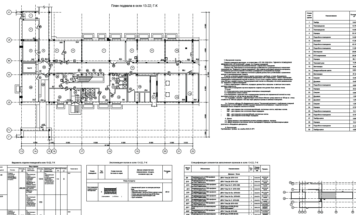
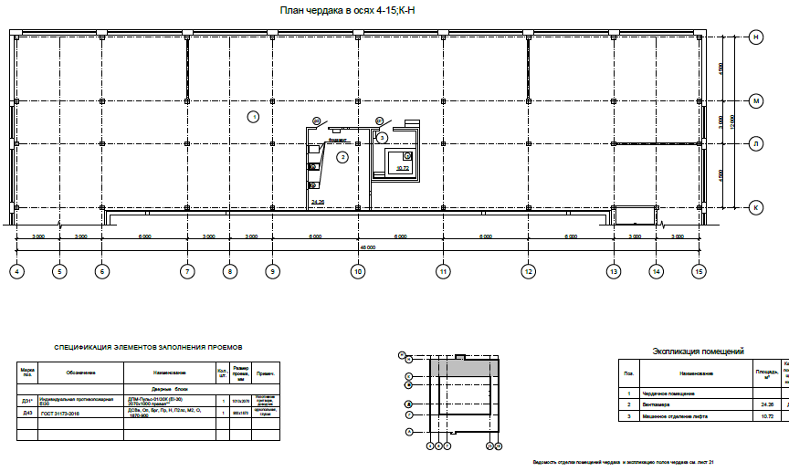
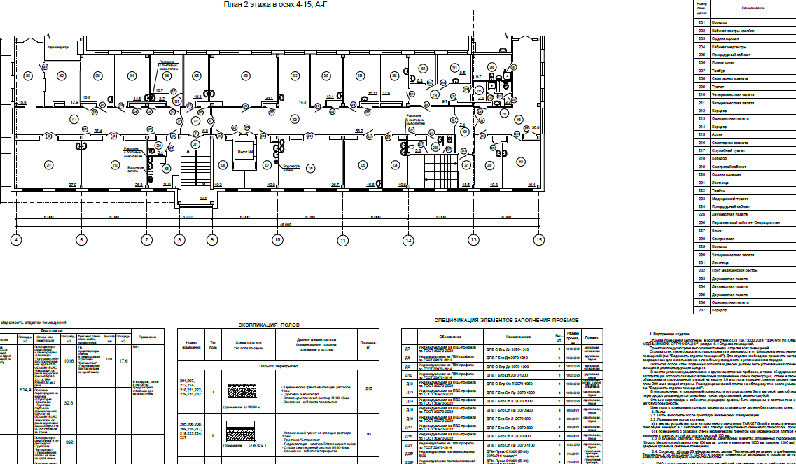
Главный корпус здания районной больницы выполнены по типовому проекту 252-1-45 «Главнй корпус участковой больницы на 150 коек с поликлиникой на 200 посещений в смену» в каркасно-панельных конструкциях. Хозяйственный корпус здания Суздальской районной больницы выполнен по типовому проекту 252-1-23 «Хозяйственный корпус участковой больницы на 150 коек с поликлиникой на 200 посещений в смену» в каркасно-панельных конструкциях. Главный корпус – существующее здание 2-х - 3-х этажное с плоской кровлей и подвалом. Здание сложной конфигурации с внутренним двором, с габаритами в плане 56.06х133,06 м с самонесущими трехслойными панелями, разновысокое, 2-х-3-х этажное с техническим этажом, с подвалом. В уровне подвала расположена переходная галерея, соединяющая главный корпус больницы с дополнительным (хозяйственным) корпусом. Архитектурно-планировочными решениями запроектированы оптимальные условия для осуществления медицинской деятельности и соблюдения санитарно-эпидемио-логических требований.