Не нашли что искали? Спросите у нас! Имеем архивы на 140 ТБ. У нас есть все современные проекты повторного применения и проекты ремонта советских типовых зданий. Пишите нам: info@proekt.sx
Вам не нужен весь проект? Сможем продать отдельную его часть (раздел или подраздел). Напишите нам! Для связи: info@proekt.sx
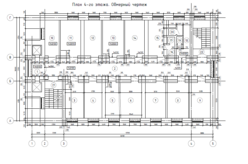
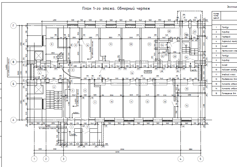
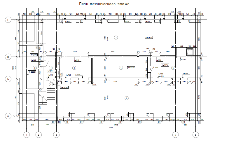
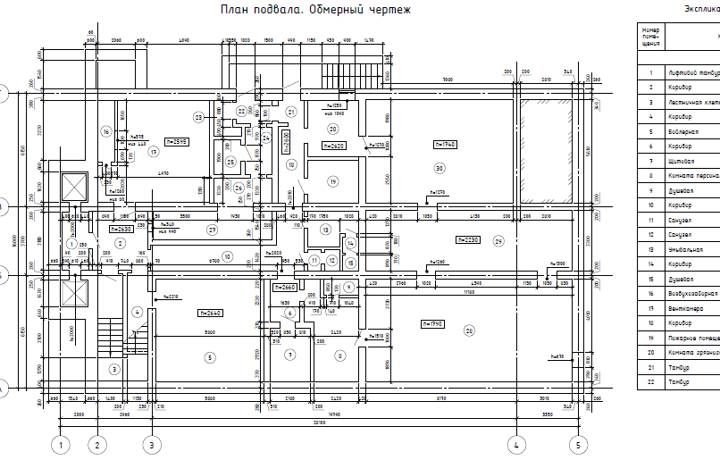
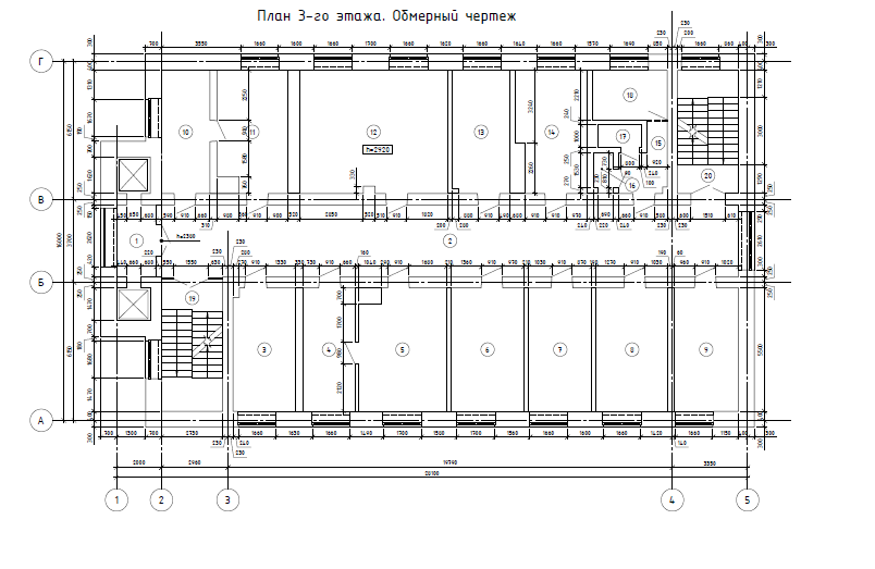
Типовой проект 254-4-5
Общие сведения.
Здание женской консультации имеет правильную прямоугольную форму с размерами в плане – 27,100 * 16,600 м и выступающий лифтовой блок с размерами в плане 8,700*2,000 м. Здание выполнено по типовому проекту 254-4-5, с подвалом и плоской неэксплуатируемой кровлей. Высота подвального помещения – 2,90 м. Высота типового этажа – 3,35 м. Высота технического этажа – 2,55 м. Фундаменты здания выполнены из железобетонных блоков ФБС толщиной 600 мм. Конструктивная схема здания представлена наружными несущими стенами и внутренними несущими стенами. Межэтажные перекрытия здания выполнены сборными из железобетонных плит с опиранием на несущие стены. Прочность, устойчивость и пространственная жесткость обеспечивается совместной работой наружных стен, внутренних стен и перекрытия. Наружные стены выполнены из пустотелого кирпича толщиной 640 мм. Внутренние стены и перегородки выполнены из пустотелого кирпича толщиной 380мм и 120 мм. Оконные конструкции выполнены из ПВХ профиля со светопрозрачной частью из клееного двухкамерного энергосберегающего стеклопакета.

