Не нашли что искали? Спросите у нас! Имеем архивы на 140 ТБ. У нас есть все современные проекты повторного применения и проекты ремонта советских типовых зданий. Пишите нам: info@proekt.sx
Вам не нужен весь проект? Сможем продать отдельную его часть (раздел или подраздел). Напишите нам! Для связи: info@proekt.sx
Типовой проект 601-3
Технико-экономические показатели.
Общая площадь объекта: 4844,2 м2
Строительный объем здания: 23261 м3
Общие сведения.
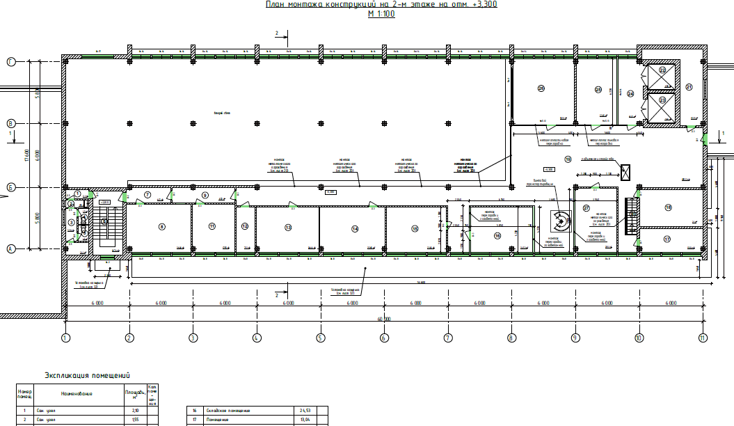
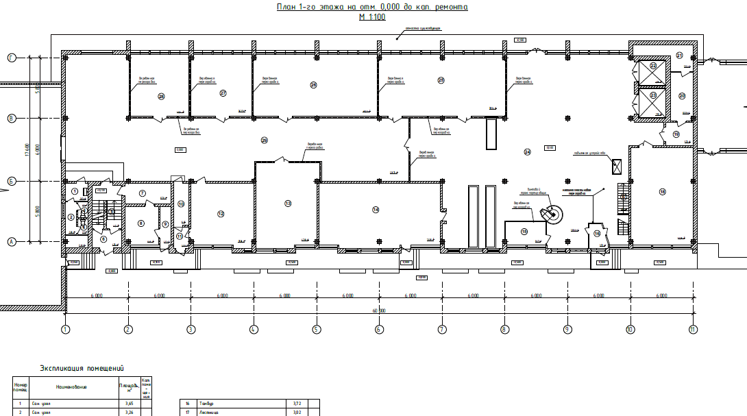
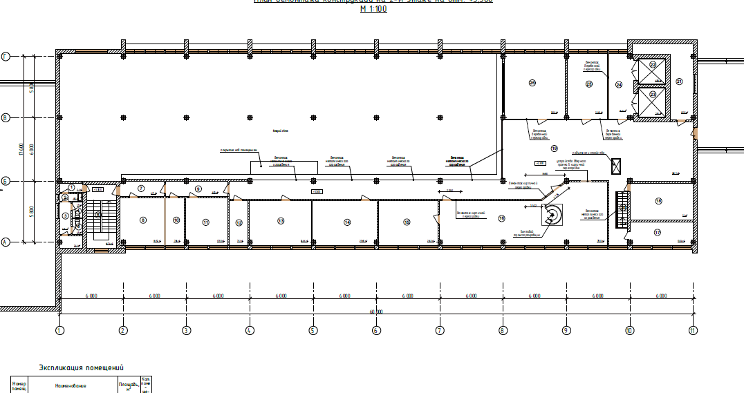
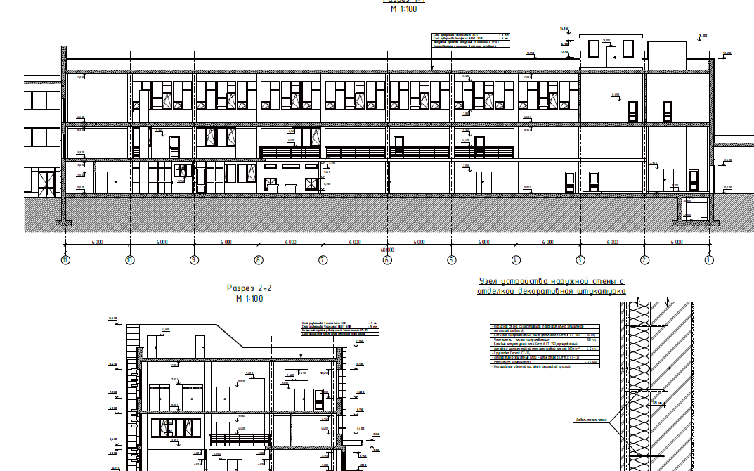
Габаритные размеры в осях – 104,0* 42,1 м. Срок ввода в эксплуатацию – 1981г. Здание запроектировано по типовому проекту №601-3 «Железнодорожный сортировочный почтамт с обменом до 5000 посылок в сутки» от 1965г, разработанный институтом «Гипросвязь». Конструктивная система здания литеры "Б" полный сборный железобетонный каркас и самонесущие наружные стены. Основанием здания являются: известняк от желто-бурого до желто-белого, кавернозный, средней крепкости, трещиноватый, с расчетным сопротивлением грунта до 3 кг/м2. Фундамент здания литеры "Б" сборные железобетонные, стаканного типа с рандбалками под наружные стены серии ИИ-22-2, альбом 1-64, стены подвала из блоков, серии ИИ -03 -02, альбом 1-64/13,18. Каркас, сетка 6х6м, выполнен по серии ИИ-20. Поперечная рама выполнена из колонн (Серия ИИ - 22- 2, марка К-15-1 и К-16-1) и ригеля обратного таврового сечения (Серия ИИ-23-1/2,4 марка Б2-1 и Б3-1). Стены выполнены из мелкоштучного камня-известняка М50 и добраны местами из глиняного полнотелого кирпича с облицовкой из глиняного полнотелого кирпича. Наружные стены толщиной 500 мм, внутренние - 400 мм. Вдоль оси Г, с шагом каркаса, в створе колонн выполнены пилястры. Наружная отделка здания выполнена из известковой плитки инкерманского месторождения размером 400х400 мм. Перекрытие здания выполнено сборным железобетонными ребристыми плитами по серии ИИ-24-1. Кровля плоская с покрытием из рулонного материала на битумной основе. Утеплитель–теплоизоляционно-конструкционный пенобетон, разуклонка выполнена боем ракушки и керамзитовым гравием. Лестницы – сборные железобетонные по серии ИИ-03-02, альбом 20а-90/7, 18, 22, марка ЛМ-33-14, ЛП-28-13.

