Не нашли что искали? Спросите у нас! Имеем архивы на 140 ТБ. У нас есть все современные проекты повторного применения и проекты ремонта советских типовых зданий. Пишите нам: info@proekt.sx
Вам не нужен весь проект? Сможем продать отдельную его часть (раздел или подраздел). Напишите нам! Для связи: info@proekt.sx
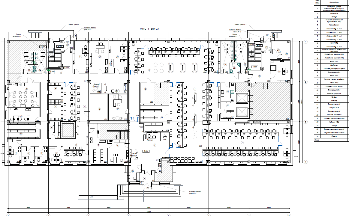
Типовой проект IX-21-5
Технико-экономические показатели
Год постройки – 1987г.
Количество наземных этажей – 2.
Количество подземных этажей – 1.
Общие сведения
Здание построено по типовому проекту IX-21-5. Наружные стены – различные. Наружные стены подвала несущие, из бетонных блоков ФБС толщиной 400мм с кирпичными доборами; навесные стены надземной части здания выполнены из керамзитобетонных панелей толщиной 340 мм. Внутренние опоры – сборные железобетонные колонны типа «К» сечением 400х400 мм. Внутренние стены - в зоне лестничных клеток несущие, сборные железобетонные панели, толщиной 180мм, с уширением в верхней части, являются стенами жесткости. воспринимают горизонтальную нагрузку на коробку здания в целом; в зоне лифтовых шахт – несущие кирпичные, воспринимают нагрузку от перекрытий и горизонтальную нагрузку на коробку здания в целом. Междуэтажные перекрытия – из сборных железобетонных панелей типа «Двойное Т» высотой 380мм, ребристых панелей типа «ПР» высотой 400мм и многопустотных плит типа «ПТ» толщиной 160мм, с опиранием на сборные железобетонные ригели типа «Р», таврового сечения с габаритными размерами 600х600 мм. Перекрытие над 2 этажом является чердачным. Чердачное перекрытие – сборное железобетонное по сборным железобетонным ригелям, совмещено с кровлей. Описание ненесущих элементов здания: Внутренние перегородки – ненесущие, выполнены из листов гипсокартона по металлическому каркасу, пенобетонных блоков, отдельные перегородки кирпичные оштукатуренные, либо облицованы керамической плиткой.

