Не нашли что искали? Спросите у нас! Имеем архивы на 140 ТБ. У нас есть все современные проекты повторного применения и проекты ремонта советских типовых зданий. Пишите нам: info@proekt.sx
Вам не нужен весь проект? Сможем продать отдельную его часть (раздел или подраздел). Напишите нам! Для связи: info@proekt.sx
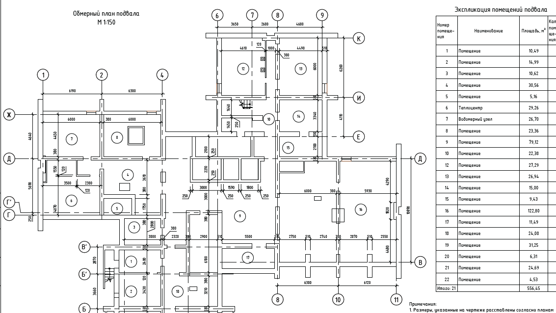
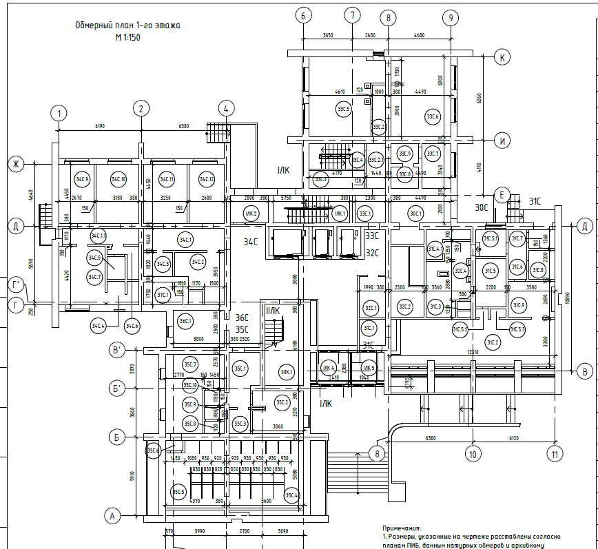
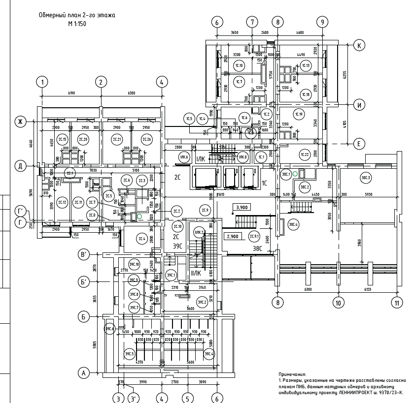
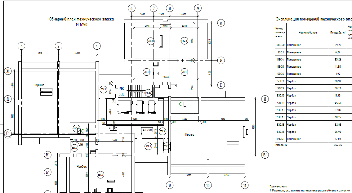
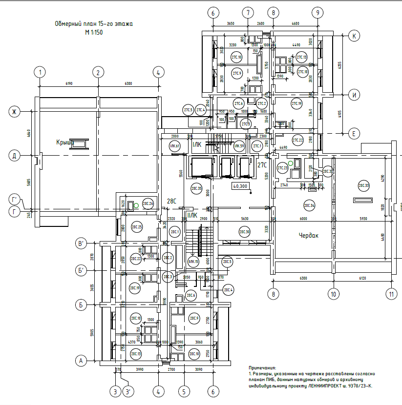
Типовой проект Щ-9378/23к (общежитие)
Технико-экономические показатели
Общая площадь - 9293,4 м2
Площадь жилых помещений - 5597,6 м2
Площадь нежилых помещений - 1877,4 м2
Число этажей - 15
Число лестниц - 3
Общие свежения.
Объект - существующее здание общежития 1980-го года постройки по индивидуальному проекту ЛЕННИИПРОЕКТ ш.9378/23-К «Общежитие на 586 мест с буфетом на 24 места». Объект представляет собой разноуровневое 13-14-15-ти этажное кирпичное здание. Кроме того, имеет технический этаж и подвал. В плане имеет сложную форму с выступающими объемами, образованную четырьмя секциями, расположенными с северной, западной, южной и восточной сторон от пространства общего назначения – лестнично-лифтового холла. Фундамент здания железобетонный сборный ленточный из фундаментных подушек и стеновых блоков. Междуэтажные перекрытия из сборных железобетонных многопустотных и плоских плит. Кровля плоская рулонная по покрытию из сборных железобетонных плит. Несущие и ограждающие стены кирпичные, внутренние перегородки помещений – из гипсокартонных листов и деревянных материалов. Прочность, пространственная жесткость, устойчивость и геометрическая неизменяемость здания обеспечивается совместной работой конструкции фундамента, стен, конструкций перекрытий.

