Не нашли что искали? Спросите у нас! Имеем архивы на 140 ТБ. У нас есть все современные проекты повторного применения и проекты ремонта советских типовых зданий. Пишите нам: info@proekt.sx
Вам не нужен весь проект? Сможем продать отдельную его часть (раздел или подраздел). Напишите нам! Для связи: info@proekt.sx
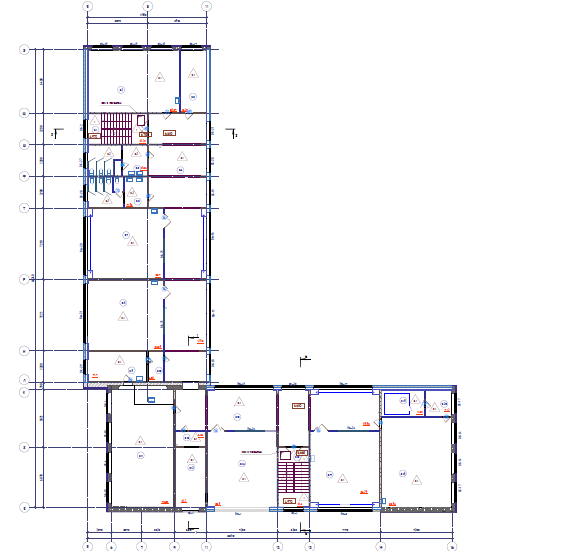
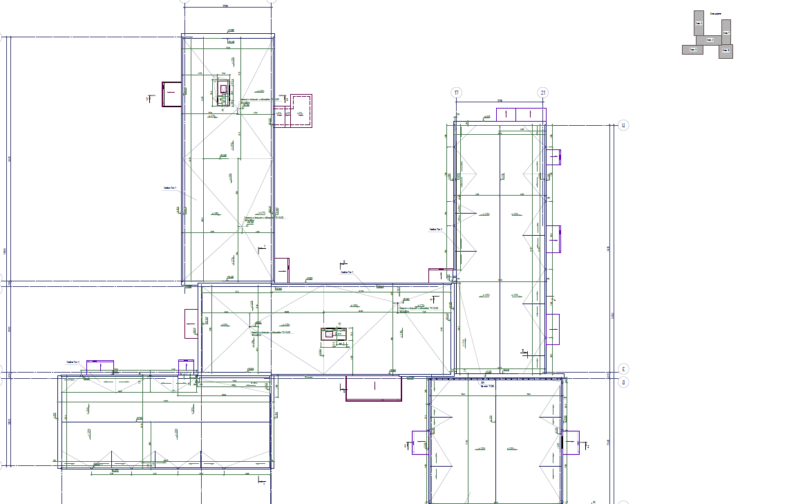
Школа типовой проект 221-1-313
Технико-экономические показатели.
Этажность, шт: 1,3
Количество этажей, шт: 1,2,4
Площадь застройки, м2: 2273,71
Общая площадь, м2: 4712,0
Полезная площадь, м2: 3532,13
Расчетная площадь, м2: 3115,96
Строительный объем здания, м3: 24672,0
Общие сведения.
Здание школы построено по типовому проекту 221-1-313, сложной формы в плане. Размеры здания в осях 68,61х64,47 м. Условно, здание школы разделено на 5 блоков: Блок «А» – 3-х этажный, с подвалом, расположен в осях 6-14/Е-К. Блок имеет размеры в осях 34,4х12,0 м. В блоке «А» расположен главный вход в школу, а также следующие помещения вестибюль с гардеробом, рабочие кабинеты, кабинет директора, электрощитовая, серверная, учебные классы, кладовые, санитарные комнаты. Блок «Б» – 3-х этажный, с подвалом, расположен в осях 5-9/Л-Э. Блок имеет размеры в осях 33,6х12,0 м. В блоке «Б» расположены следующие помещения - учебные классы, лаборантские, кладовые, санитарные комнаты. Часть подвальных помещений здания оборудованы под спортивные учебные классы. Блок «В» – одноэтажный, с подвалом, расположен в осях 1-9/Б-Д. Блок имеет размеры в осях 28,8х12,14 м. В блоке «В» расположены следующие помещения - кабинет технологии (мальчиков и девочек), учебные классы, кладовые, санитарные комнаты, помещение медицинского пункта. 4. Блок «Г» – одноэтажный, с подвалом, расположен в осях 15-19/Е-Ц. Блок имеет размеры в осях 34,4х11,96 м. В блоке «Г» расположены следующие помещения - обеденный зал с кухонными помещениями, умывальная, кабинет заместителя директора по АХЧ, тренажёрная, санитарные комнат, раздевальные помещения для мальчиков и девочек при спортивном зале (с душевыми). 5. Блок «Д» – одноэтажный, без подвала, расположен в осях 13-20/А-Д. Блок имеет размеры в осях 17,8х17,6 м. В блоке «Д» расположены следующие помещения – актовый и спортивный зал, подсобные помещения. Фундаменты блоков «А», «Б», «В» и «Г» - свайный, с монолитным железобетонным ленточным ростверком, шириной 360-1220 мм, высотой сечения 400 - 600 мм. Столбчатые ростверки размером в плане 2300х2300 мм, высотой 1000 - 1060 мм. Фундаменты блока Д здания – столбчатые на забивных сваях. Продольное армирование ростверко выполнено арматурой класса АIII ф10-14 мм, поперечное арматурой класса АI ф8 мм. Сваи забивные железобетонные квадратного сечения 300х300мм, шаг свай от 1,2 до 3,9м, длина свай составляет 5,8 м. Продольное армирование свай выполнено арматурой класса АIII ф10 мм, поперечное арматурой класса АI ф6 мм. Прочность бетона железобетонных свай соответствует класссу В25-В50, прочность бетона ростверков соответствует классу В25-В35. Сопряжение ростверков со сваями предусмотрено с заделкой в тело ростверка выпусков арматуры на 250 мм, что согласно СП 24.13330.2021 "Свайные фундаменты" является жестким спряжением. По существующим ростверкам блока «В», «Г» и «Д» предусмотрено устройство железобетонных фундаемнтных балок сечением 400х500(h) мм, из бетона кл. В20, F1 150, W4, армированные арматурой класса А400 из стали марки 25Г2С по ГОСТ 5781-82 и горячекатаная арматурой класса A240 из стали марки Ст3пс по ГОСТ 5781-82. Плиты перекрытия и покрытия – сборные железобетонные преднапряженные (для пролетов 6,4м и 7,2м) и с обычным армированием (для пролетов 3,2м) многопустотные, толщиной 220 мм, с опиранием по двум сторонам на наружные и внутренние стеновые панели и доборные ригели. В бдлоке «Д» опирание плит покрытия выполнено по двум сторонам на ж/б тавровые балки. Плиты перекрытия длиной 3,2 м армированы пятью стержнями арматуры класса АIV ф14 мм, плиты перекрытия длиной 6,4 м армированы четырьмя стержнями арматуры класса АIV ф14 мм, плиты перекрытия длиной 7,2 м армированы четырьмя стержнями арматуры класса АIV ф18 мм. Плиты перекрытия длиной 3,2 м и 6,4 м выполнены по серии 25 с нормативной нагрузкой 900 кг/м2 с учетом собственного веса плит, расчетная 1075 кг/м2. Плиты перекрытий длиной 7,2 м выполнены по серии 25 с нормативной нагрузкой 850 кг/м2 с учетом собственного веса плит, расчетной 1015 кг/м2. Прочность бетона сборных железобетонных многопустотных плит перекрытий и покрытия соответствует классу В15-В20. Прочность бетона монолитных участков перекрытия над подвалом соответствует классу В15. Стены наружные – наружные поперечные стены блоков «А», «Б», «В» и «Г» – несущие, однослойные (из керамзитобетона) толщиной 400 мм. Наружные продолные стены (а в блоке «Д» продольные и поперечные) выполнены из трех- слойных сэндвич-панелей «Металл Профиль» по ГОСТ 32603-2021 со скрытым креплением ТСП-S, покрытие PURMAN, с утеплением из минераловатных плит ПЖ-140 по ГОСТ 9573- 2012, толщиной 200мм, с внутренней стороны обшивка 2 слоя ГСП-А толщиной 12,5 мм. Конструкции системы стенового фахверка - каркас выполнен из стальных прокатных профилей (для блоков «А», «Б», «В» и «Г»). Опирание стоек на железобетонные фундаментные балки шарнирное (крепление базы стоек на клеевых анкерах ф20мм), примыкание ригелей к стойкам – шарнирное. Колонны – стальные, из горячекатанных широкополочных двутавров 25Ш2 по ГОСТ Р 57837-2017 , сталь марки С245; Ригели - стальные, из горячекатанных широкополочных двутавров 35Ш1 по ГОСТ Р 57837-2017, сталь марки С245. Узел крепления стоек фахверка предусмотрен к ж/б стеновым доборным ригелям через уголки приваренные к закладным деталям в уровне низа перекрытия. Пространство между стойками фахверка заполнить кирпичной кладкой толщиной 380мм из кирпича КР-р-ро 250х120х65/1НФ/125/2.0/50 /ГОСТ 530-2012 на цементно-песчаном растворе М100, F100, армирование кладки через 4 ряда сеткой ф5Вр1 с ячейкой 100х100мм. Крепление кладки к стойкам фахверка производится при помощи приваренных арматурных выпусков. Для блока «Д» ригели фахверка крепятся к существующим ж/б колоннам. Ригели составного сечения из швеллеров 20У по ГОСТ 8240-97. Стены внутренние – панели несущих поперечных стен железобетонные, толщиной 160мм. Разрезка поперечных с тен двухрядная, высота нижнего ряда соответствует высоте панелей жилых домомв серии «25», а увеличение высоты этажа осуществляется путем установки доборного элемента – ригеля высотой. Панели-ригеля – сборные железобетонные прямоугольного сеченья 160х490 мм. По нижней грани ригеля установлены два стальных равнополочных уголка 63х5, спаренные в П-образное сечение, связанные с рабочей арматурой ригеля. Связь панелей-ригелей с внутренними стеновыми панелями осуществляется путём сварки закладных деталей панелей с стальными уголками. Рабочая арматура в доборной панели-ригеле диаметром 32 мм периодического профиля. Защитный слой бетона составляет от 20 до 25 мм. Колонны – колонны блока «Д» жлезобетонные, сечением 400х400мм из бетона В30, выстой 6,9. По результатам вскрытия рабочая арматура в колонне диаметром 28 мм периодического профиля. Защитный слой бетона составляет 30 мм. Ригели – ригели каркаса блока «Д» из железобетонной двутавровой балки высотой сечения 900мм, из бетона кл. В35, рабочим пролетом 9м. Согласно результатам обследования балки покрытия выполнены по серии 1.462.1-10/80. Рабочая арматура в балке покрытия диаметром 28 мм периодического профиля. Конструктивная арматура диаметром 6 мм гладкого профиля. Защитный слой бетона составляет от 15 до 25 мм. Вертикальные металлические связи в блоках «А», «Б», «В», «Г» выполнены из стальных неравнополочных уголков 200х125х12 по ГОСТ 8510-86; крыша, кровля – плоская, с организованным внутренним и наружным водостоком.

