Не нашли что искали? Спросите у нас! Имеем архивы на 140 ТБ. У нас есть все современные проекты повторного применения и проекты ремонта советских типовых зданий. Пишите нам: info@proekt.sx
Вам не нужен весь проект? Сможем продать отдельную его часть (раздел или подраздел). Напишите нам! Для связи: info@proekt.sx
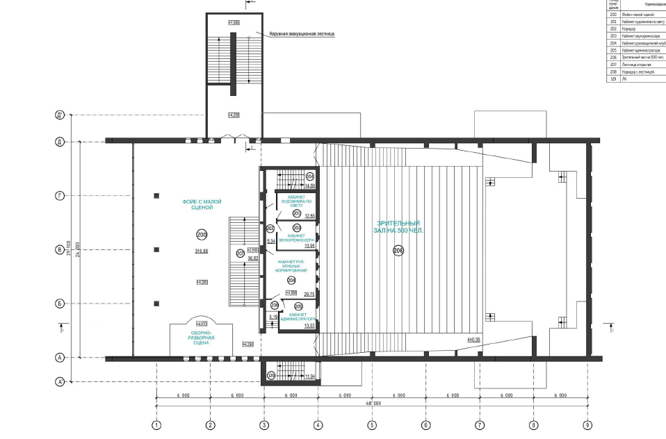
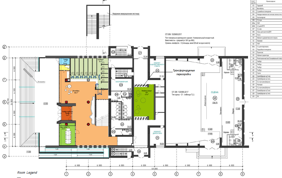
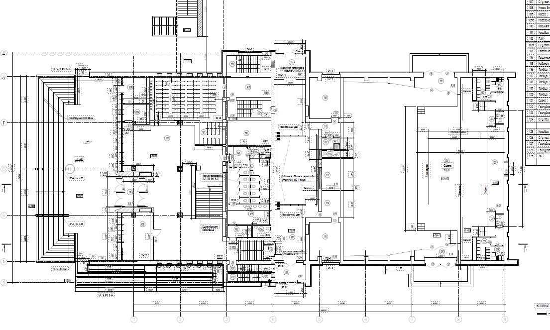
Кинотеатр типовой проект 264-13-1
Проектная документация, включая смету, и результаты инженерных изысканий на капитальный ремонт кинотеатра типовой проект 264-13-1
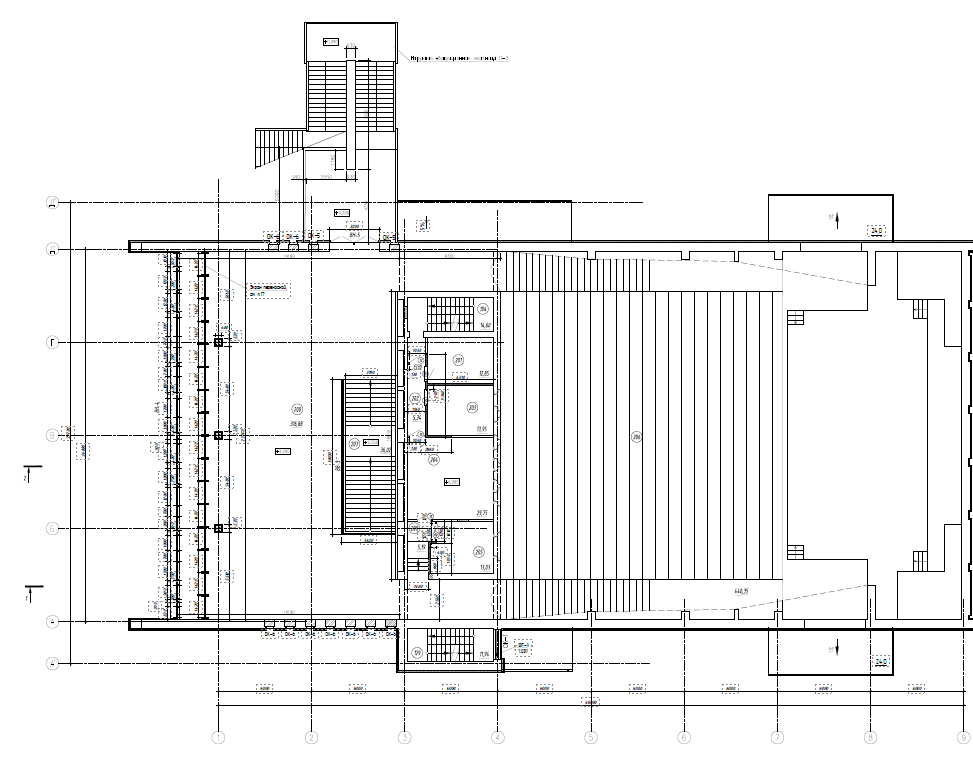
Технико-экономические характеристики объекта капитального строительства
Площадь участка: 5251 м2
Этажность: 3 эт.
Высота здания: 14,53 м по коньку выхода на кровлю.
Общая площадь здания: 2314,6 м2
Строительный объем: 16092 м3
Общие сведения.
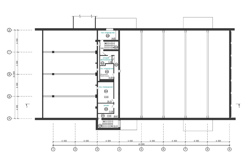
Здание ДК трех этажное прямоугольной формы в плане, с подвалом под частью здания. Конструктивная схема – система несущих и самонесущих внутренних и наружных стен, местный каркас в осях 1-2, диски перекрытий и покрытий. Конструкции существующего здания; Стены наружные из керамического полнотелого кирпича на цементно- песчаном растворе толщиной 510 мм. Стены внутренние – полнотелый керамический кирпич на цементно-песчаном растворе. Колонны – сборные железобетонные сечением 400х400 мм. Перегородки – кирпичные, дощатые. Перекрытия – сборные железобетонные плиты типа ПК толщиной 220 мм. В осях 1-3 плиты перекрытия 1 этажа и подвала опираются на спаренные железобетонные балки сечением 250х250 мм. Балки в свою очередь опираются на прямоугольные консоли колонн. Покрытие – сборные железобетонные плиты типа ПК высотой 220 мм. Кровля – наплавляемая по стяжке. Лестницы: входной группы (парадная) бетонная по оси 1, основная одномаршевая на 2 этаж, сборные железобетонные площадки и марши, двух маршевая в осях 2-3/Г, наружная эвакуационная двух маршевая открытая с уровня 2 этажа с выходом наружу, монолитная железобетонная с монолитными железобетонными перилами. отмостка – асфальтобетонное покрытие по периметру здания, - крыша – совмещенная с изначально запроектированным внутренним водостоком. В осях 1-4 – скатная с микро-чердаком из наплавляемых материалов с уклоном на разных участках от 1% до 13%. Микро-чердак образован при ремонте кровли путем монтажа деревянного каркаса поверх существующей совмещенной кровли. В осях 4-9 – совмещенная с гидроизоляцией из наплавляемых материалов.

