Не нашли что искали? Спросите у нас! Имеем архивы на 140 ТБ. У нас есть все современные проекты повторного применения и проекты ремонта советских типовых зданий. Пишите нам: info@proekt.sx
Вам не нужен весь проект? Сможем продать отдельную его часть (раздел или подраздел). Напишите нам! Для связи: info@proekt.sx
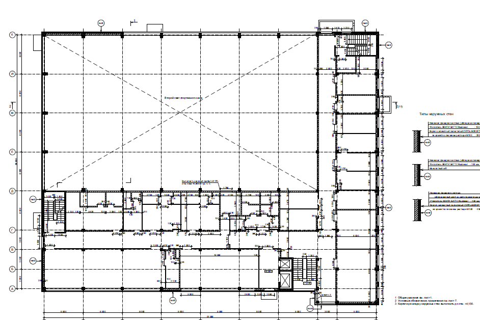
Спортивный зал художественной гимнастики
Технико-экономические показатели
Общая площадь здания (м2): 4116,3
в том числе: технических этажей: 1153,7
Полезная площадь здания (м2): 3847,3
в том числе: технических помещений: 1065,8
Расчетная площадь здания (м2): 2319,8
Строительный объём (м3): 28684,0
в том числе: подземной части: 2909,2
надземной части: 25774,8
Площадь застройки (м2): 2165,8
Этажность здания: 2
Количество этажей: 3
Общие сведения.
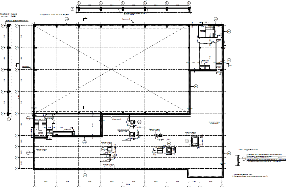
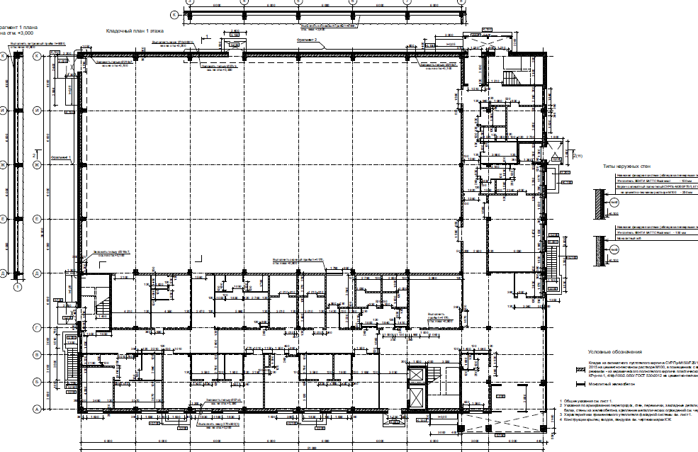
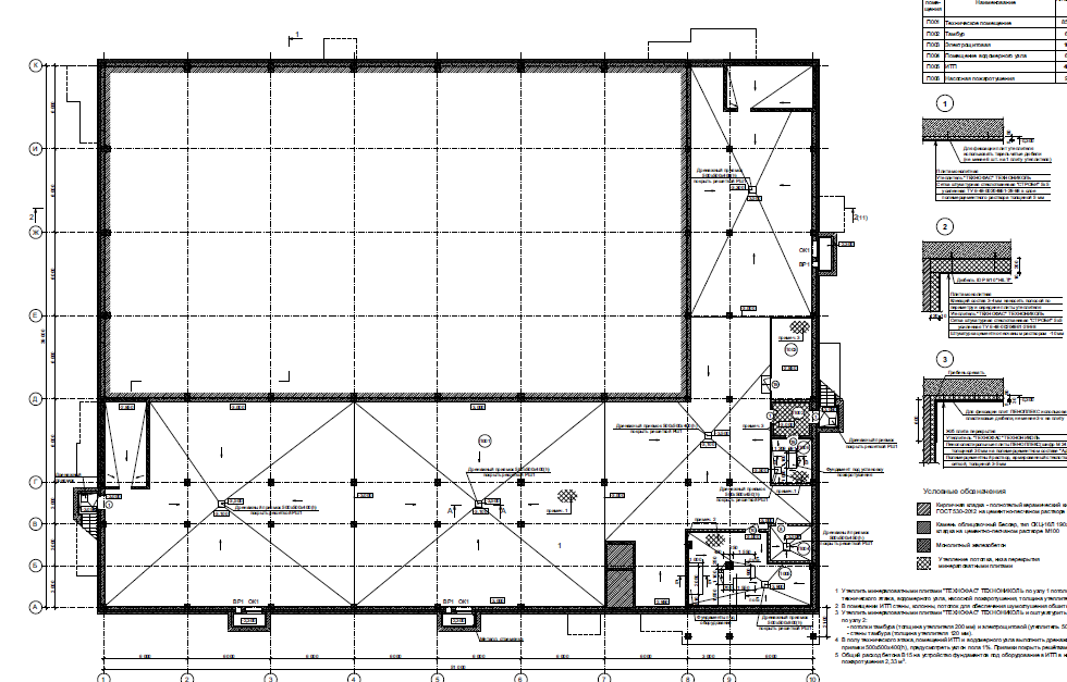
Архитектурные решения здания спортивного зала лаконичны - объем следует за функциональными параметрами сооружения. Облик здания формируется на контрасте одноэтажного объема универсального спортивного зала, доминирующего по высоте, и двухэтажной части постройки. Главный вход в здание организован с угла, акцентирован выступающим, нависающим объёмом второго этажа. Данное планировочное решение позволяет организовать оптимальное функциональное зонирование здания, распределение потока посетителей, занимающихся, административного и обслуживающего персонала. Проектируемое здание, прямоугольное в плане, имеет габариты 51,0 х 39,0 м в крайних осях. Высота 1-го этажа двухэтажной части здания (от пола до пола следующего этажа) 3,3 м, высота 2-го этажа 3,9 м (в чистоте), технического этажа 2,5 м (в чистоте). Отметка высоты основного парапета +8,600; отметка высоты парапета лестничных клеток и технических надстроек +11,300. Высота универсального зала до низа конструкций 14,0 м, отметка высоты парапета +16,800. Технический этаж (техподполье) располагается только под двухэтажной частью здания и предназначен для размещения инженерных коммуникаций и технических помещений : ИТП, водомерного узла, электрощитовой. Техэтаж имеет два выхода непосредственно на улицу по лестницам в приямке и аварийный выход через окно дымоудаления (проём 1200х1600(h)) с приямком, оборудованным металлической стремянкой. Для защиты от шума в помещении ИТП предусмотрена шумоглушащая отделка, помещение расположено таким образом, что над ними нет постоянных рабочих мест. На первом этаже здания расположены: вестибюль главного входа с открытой лестницей на второй этаж и лифтами, помещение охраны, гардероб, стойка и кабинет администраторов, универсальный спортивный зал 42,0 х 24,0 м с телескопическими раздвижными трибунами на 150 зрителей (включая МГН), раздевалки, тренерская, дикторская (радиоузел для обеспечения музыкального сопровождения), медицинский блок, буфет с загрузочной и вспомогательными помещениями, санузлы для посетителей ( в том числе для МГН), служебные помещения технического персонала. Главный вход в здание имеет теплый тамбур габаритом 2,85 (глубина) х 5,96 м, раздвижные и двустворчатые витражные двери, свободную входную площадку, пандус с уклоном 1:20 и поручнями для обеспечения доступа маломобильных групп населения. Кроме главного входа в здании предусмотрены необходимые эвакуационные выходы из лестничных клеток и спортивного зала с местами для зрителей. На втором этаже расположены: зал для хореографии (на 15 чел.), тренажерный зал (на 10 чел.), раздевалки, инструкторская, дикторская, конферен-зал (судейская), методический кабинет, административные и служебные кабинеты, санузлы (в том числе для МГН) и помещения вспомогательного назначения. Все раздевалки, помещения для тренеров и спортсменов-инструкторов имеют выходы в изолированный коридор с лестничной клеткой, что обеспечивает удобную функциональную связь со всеми спортивными залами, расположенными поэтажно. В соответствии с заданием на проектирование, в котором прописана возможность трансформирования универсального зала для занятий и проведения соревнований по другим видам спорта, в том числе с участием спортсменов-инвалидов ПОДА (6 чел.), предусмотрены специальные раздевалки для МГН на первом этаже. Для обеспечения эвакуации из здания предусмотрены две лестницы Л1 (с выходом на кровлю), открытая лестница вестибюля, ведущая в холл второго этажа, выделенный противопожарными перегородками, и две зоны безопасности для МГН на втором этаже: в лифтовом холле и в лестничной клетке №1, оборудованных дымогазонепроницаемыми противопожарными дверями EIS60. Все лестницы, кроме подвальных, запроектированы с учётом прохода не менее 1350 мм, с ограждениями высотой 1200 мм. Двери входов в лестничные клетки шириной не менее 1200 мм, выходов из них - не менее 1350 мм в "свету". Вертикальные коммуникации осуществляются также с помощью 2-х лифтов : грузоподъемностью 630 кг и 1000 кг с шириной двери 1200 мм для МГН и возможной транспортировки людей на носилках. Лифт грузоподъемностью 1000 кг работает в режиме "Перевозка пожарных подразделений". Двери шахты лифтов имеют предел огнестойкости не менее EI60. Лифты приняты без машинного отделения производства KONE.

