Не нашли что искали? Спросите у нас! Имеем архивы на 140 ТБ. У нас есть все современные проекты повторного применения и проекты ремонта советских типовых зданий. Пишите нам: info@proekt.sx
Вам не нужен весь проект? Сможем продать отдельную его часть (раздел или подраздел). Напишите нам! Для связи: info@proekt.sx
Типовой проект 212-2-41/75
Технико-экономические показатели.
Количество этажей, в т.ч.: шт.: 2
надземных, шт.: 2
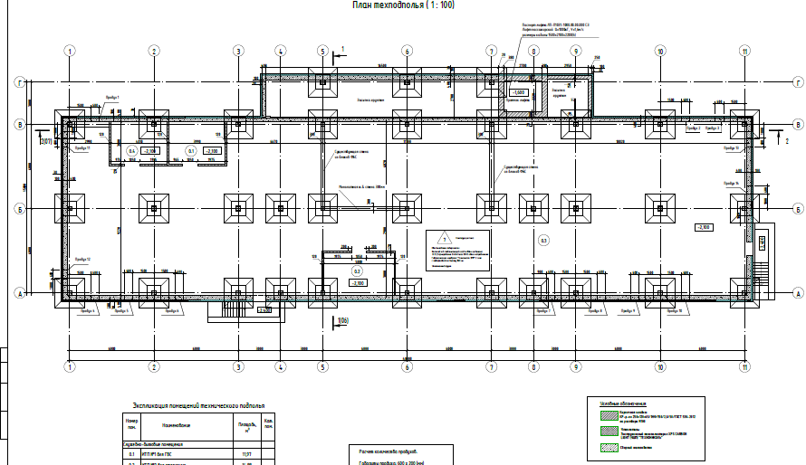
подземных (техническое подполье), шт.: 0
Общая площадь здания, в т.ч.: м2: 1900
Техподполье, м2: 597
1 этаж, м2: 656
2 этаж, м2: 647
Строительный объем, в т.ч.: м3: 6525
выше 0.000, м3: 5160
ниже 0.000, м3: 1365
Площадь застройки, м2: 788,0
Полезная площадь, м2: 1234,19
Общие сведения.
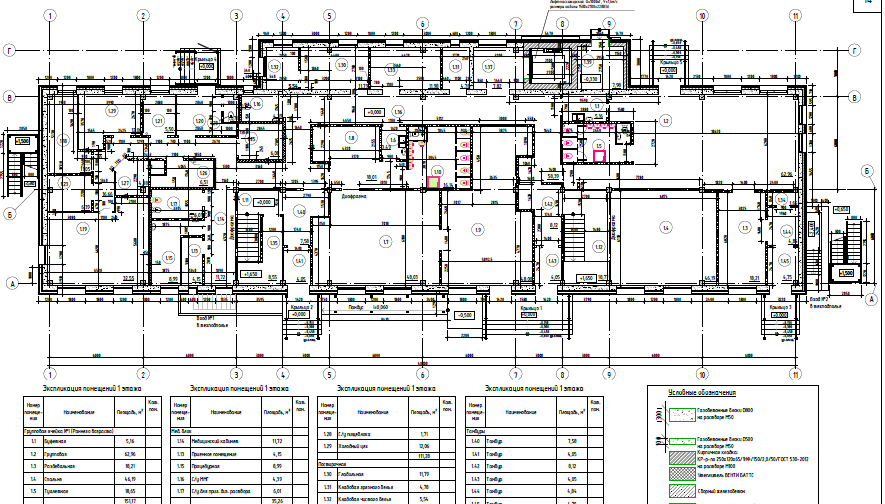
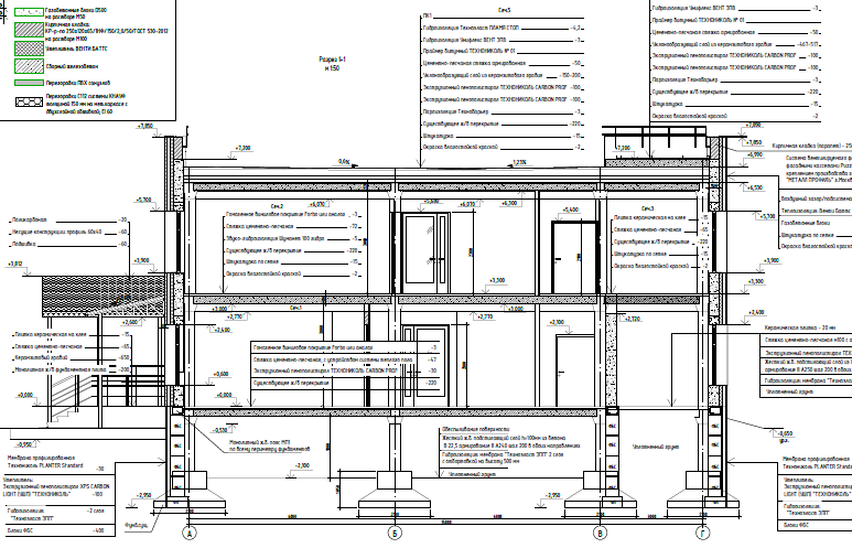
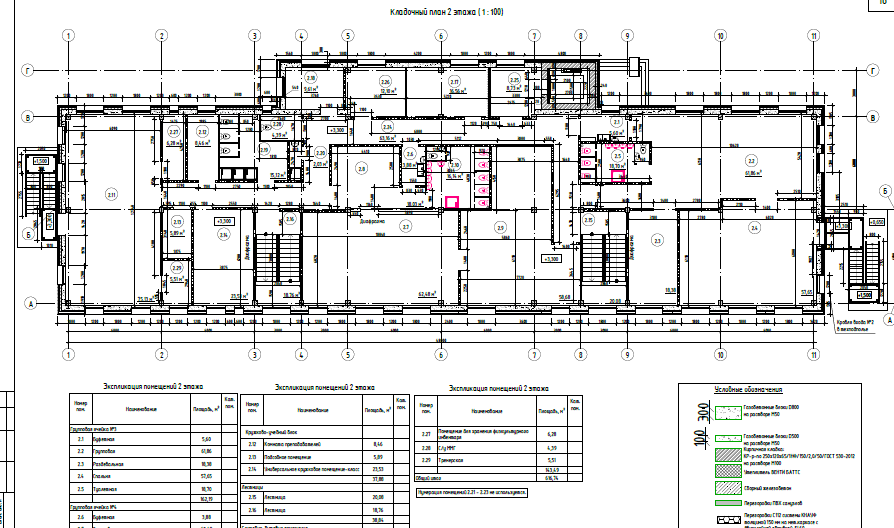
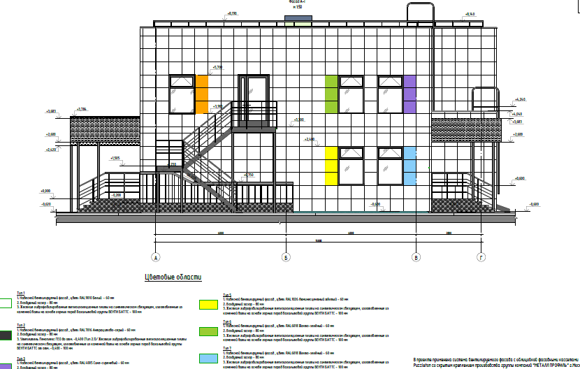
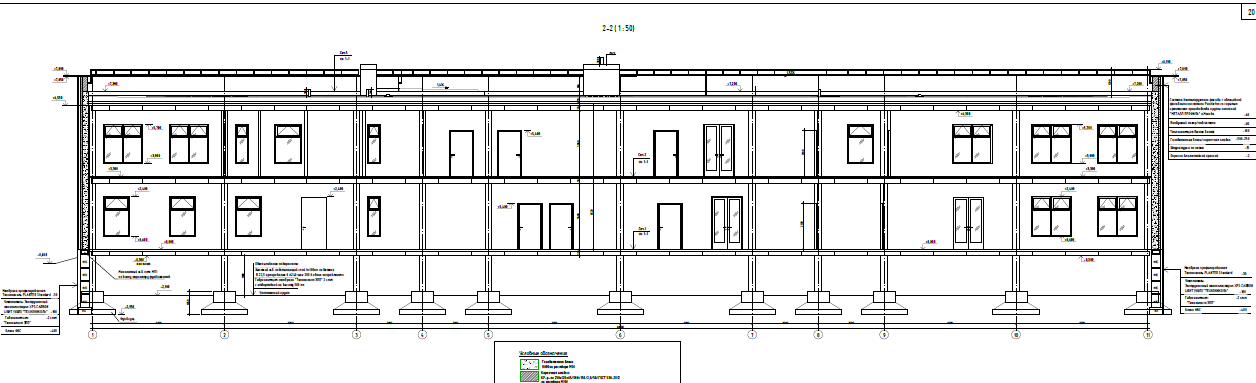
Существующее здание детского сада - двухэтажное с техническим подпольем для прокладки инженерных коммуникаций. Здание построено по типовому проекту 212-2-41/75. Здание имеет прямоугольную форму с выступом на северном фасаде. Размеры существующего здания в осях А-В – 12,0 м; в осях 1-11 – 48,0 м; выступающая часть в осях В-Г - 3,0 м; в осях В-Г - 3,0 м. После реконструкции габариты здания составляют 13,42 м х 49,42 м; выступающая часть 3,0 м х 24,0 м. Высота этажей от уровня чистого пола до потолка составляет 3,0 м. Высота технического подполья от уровня чистого пола до низа перекрытий составляет 1,8 м. Отметка верха парапета существующая +7.200, после реконструкции +7.890. За относительную отметку 0.000 принята отметка уровня чистого пола первого этажа, соответствующая существующей абсолютной отметке 207.73. Существующие несущие конструкции здания – железобетонный пространственный каркас с самонесущими панельными стенами толщиной до 320 мм. Здание каркасного типа.

