Не нашли что искали? Спросите у нас! Имеем архивы на 140 ТБ. У нас есть все современные проекты повторного применения и проекты ремонта советских типовых зданий. Пишите нам: info@proekt.sx
Вам не нужен весь проект? Сможем продать отдельную его часть (раздел или подраздел). Напишите нам! Для связи: info@proekt.sx
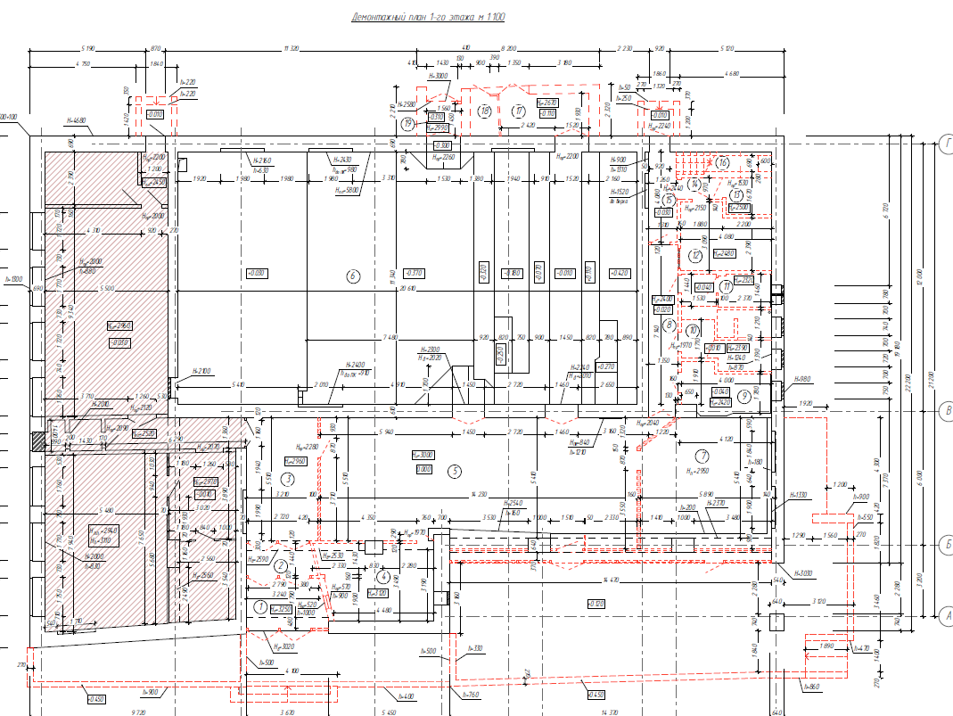
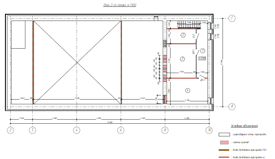
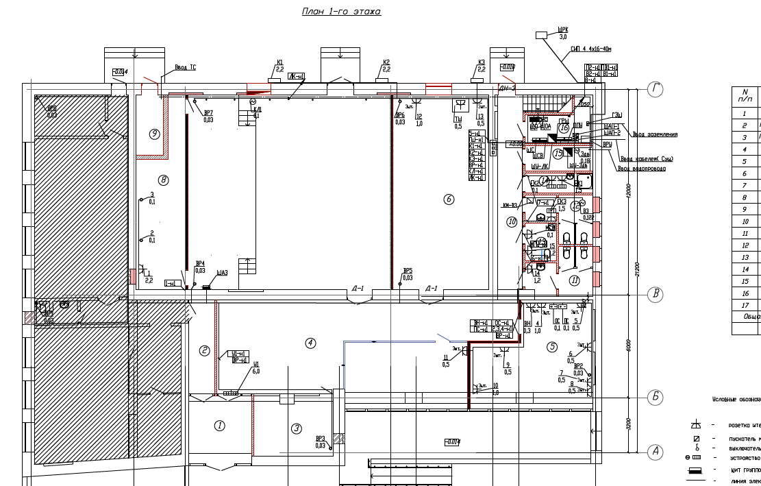
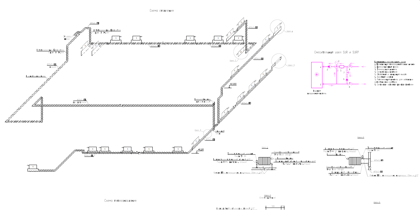
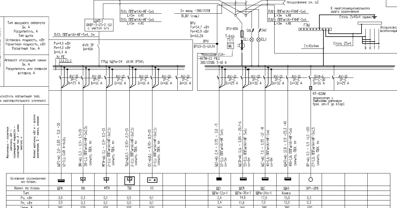
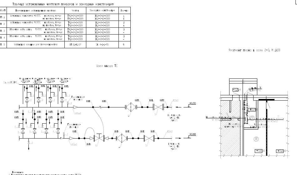
Типовой проект 264-13-33
Общие сведения.
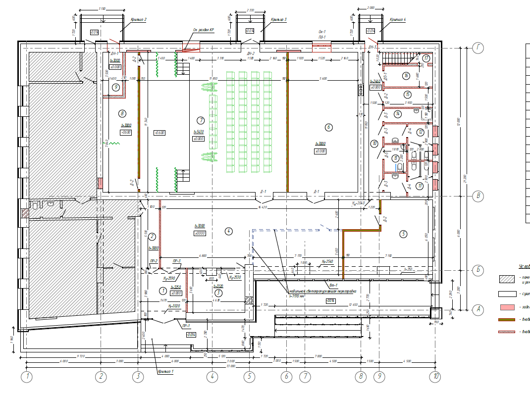
Здание построено в 1983 г. согласно типового проекта 264-13-33 «Кинотеатр на 300 мест с клубными помещениями», разработанного институтом «Росгипросельхозстрой», введенному в действие в 1968 г. и рабочему проекту. Здание муниципального учреждения представляет собой сложный, приближенный к прямоугольнику, в плане одноэтажный и двухэтажный в осях «В-Г» - «8-10» объем с размерами в осях 21,2×33,0 м. Высота помещений 1-го этажа в чистоте – 2,95...3,11 м, с увеличенной высотой зритель-ного зала в осях «В-Г» - «2-8» до низа подвесного потолка - 5,8 м, выполненного асбестоце-ментными листами по каркасу из спаренных швеллеров №14, образовывающих ячейку 1,0×1,5 м. Высота помещений 2-го этажа в осях «В-Г» - «8-10» в чистоте – 2,68 м. Основная конструктивная схема здания решена в виде одноэтажного трехпролетного поперечника, образованного несущими продольными кирпичными стенами, железобетонными пустотными и плоскими пл итами перекрытия, а также в осях «В-Г» - «2-8» - железобетонными балками и ребристыми плитами покрытия. Крыша - плоская совмещенная утепленная с покрытием многослойным рубероидным ковром и наружным неорганизованным водостоком. Уровень ответственности зданий II (нормальный). Класс функциональной пожарной опасности здания Ф2.1. Степень огнестойкости здания – II.

