Не нашли что искали? Спросите у нас! Имеем архивы на 140 ТБ. У нас есть все современные проекты повторного применения и проекты ремонта советских типовых зданий. Пишите нам: info@proekt.sx
Вам не нужен весь проект? Сможем продать отдельную его часть (раздел или подраздел). Напишите нам! Для связи: info@proekt.sx
Типовой проект 264-12-144
Технико-экономические показатели:
Площадь застройки, м2: 3341,20
Коэффициент застройки, %: 30
Общая площадь здания, м2: 4348,10
Полезная площадь здания, м2: 3661,23
Расчетная площадь здания, м2: 2954,59
Строительный объём, в том числе, м3: 28864,00
Количество этажей, шт: 3
В том числе ниже отм. 0,000, шт: 1
В том числе выше отм. 0,000, шт: 2
Этажность, шт: 1-2
Количество мест в зрительном зале, шт: 500
Общие сведения.
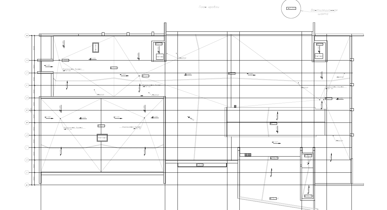
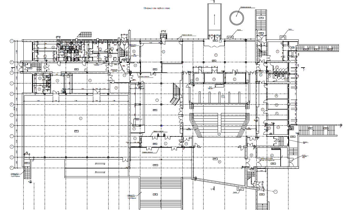
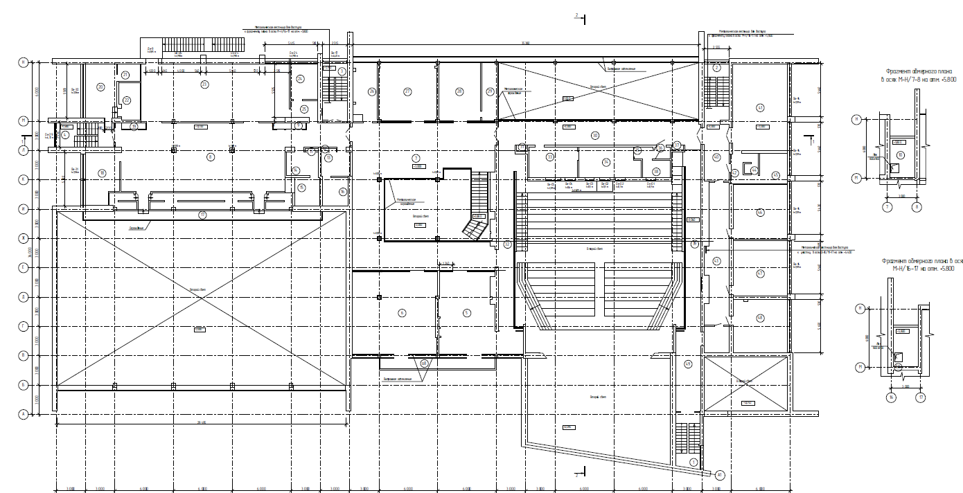
Здание клуба построено по типовому проекту 264-12-144. Здание по конструктивной системе – комбинированное (каркасно-стеновое). Пространственная устойчивость здания обеспечивается совместной работой кирпичных стен и дисков перекрытия и покрытия. Фундаменты различных конструктивных решений. Наружные стены – выполнены из силикатного кирпича с облицовкой из керамического кирпича на цементно-песчаном растворе марки М50. Толщина наружной стены (без учета отделочного покрытия) – 510 мм. Цокольная часть – выполнена из керамического кирпича на цементно-песчаном растворе марки М50. Стены подвала выполнены из керамического кирпича на цементно-песчаном растворе марки М50 и сборных бетонных блоков типа ФБС. Сечения блоков типа ФБС – 600×400 мм и 600×500 м. Внутренние стены – выполнены из силикатного кирпича с облицовкой из керамического на цементно-песчаном растворе марки М50. Толщины внутренних стен (без учета отделочного покрытия) – 250 мм и 380 мм. Внутренние стены лестничных клеток – выполнены из силикатного кирпича с облицовкой из керамического кирпича на цементно-песчаном растворе марки М50. Толщина внутренних стен лестничных клеток (без учета отделочного покрытия) – 380 мм и 510 мм. Перегородки выполнены из различных материалов: силикатный кирпич на цементно-песчаном растворе марки М50; керамический кирпич на цементно-песчаном растворе марки М50 (во влажных помещениях); алюминиевых профилей с витражным остеклением. Толщины перегородок (без учета отделочного покрытия) – 80÷120 мм. Колонны различных конструктивных решений. Лестницы: основного здания – лестничные марши внутренних лестниц в осях 1-3/ Л-М, 7-8/ М-Н, 16-17/ М-Н, 15-16/ А1-А, 10-1/Ж-К – из железобетонных сборных ступеней по стальным оштукатуриваемым косоурам; выходов на кровлю и эвакуационная со второго этажа – металлические; входов в подвал в осях 15-16/ А1-А, 16-17/ М-Н, 7-8/ М-Н – сборные железобетонные наборные ступени, уложенные на кирпичную кладку. Выходы на кровлю осуществляются с помощью металлических лестниц на следующихучастках: по оси «16» между осями «Б – В»; - между осями «А1 – А / 15 – 16». Ригели, прогоны, балки и перемычки – сборные железобетонные. Покрытие из сборного настила и ребристых панелей. Несущими конструкциями покрытия спортзала служат сборные железобетонные балки, зрительного зала и сцены – стальные фермы.

